Rab, Banjol, penthouse építés alatt
- Home
- Lakás/lakás
- Rab, Banjol, penthouse építés alatt
Részletek
-
Ár 515,000€
-
Felület 134.00 m²
-
Hálószobák száma 2
-
Szobák száma 3
-
Fürdőszobák száma 2
-
Tranzakció Eladó
-
Írja be Lakás/lakás
-
Emelet 2
-
Összes emelet 2
-
Parkolóhelyek 2
-
Apartman típus egy lakóépületben,
-
Azonosító kód HZ2854
Leírás
Za sve dodatno obratite nam se s povjerenjem!
Tisztelt vevők, az Ingatlanközvetítői Törvény értelmében az ingatlan megtekintése csak közvetítői szerződés aláírása után lehetséges. Vásárlás esetén a vevő köteles közvetítői jutalékot fizetni.
ID KOD AGENCIJE: 2854
Sendi Vinski
Engedélyezett ügynök
Mobil: 0038598443289
Telefon: 0038551222673
E-mail: prodaja@ardor-realestate.com
www.ardor-realestate.com
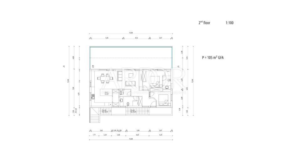
The apartment consists of a spacious living room with kitchen and dining area, a kitchen island, two bathrooms (one of which is en-suite to the master bedroom), and two bedrooms. Each apartment includes two private parking spaces.
PVC anthracite joinery, mosquito nets, and electric shutters ensure a modern look and comfort. The property is located in a quiet olive grove area, 5 minutes from the sea and a 5-minute drive from the old town of Rab, with the possibility of a 20-minute walk or 10-minute taxi boat ride.
The price is initial and valid for the early sales phase, with the possibility to customize the interior design.
For any additional information, feel free to contact us!
Dear clients, in accordance with the Real Estate Brokerage Act, property viewings are possible only upon signing a Brokerage Agreement. In the event of a completed purchase, the buyer is obligated to pay the agency commission.
ID CODE: 2854
Sendi Vinski
Engedélyezett ügynök
Mobil: 0038598443289
Telefon: 0038551222673
E-mail: prodaja@ardor-realestate.com
www.ardor-realestate.com
L’appartamento è composto da un ampio soggiorno con cucina e zona pranzo, isola cucina, due bagni (di cui uno nella camera matrimoniale) e due camere da letto. Ogni appartamento dispone di due posti auto privati.
Infissi in PVC antracite, zanzariere e tapparelle elettriche assicurano un design moderno e comfort. L’immobile si trova in una zona tranquilla tra gli uliveti, a 5 minuti dal mare e a 5 minuti in auto dal centro storico di Arbe, con possibilità di raggiungerlo a piedi in 20 minuti o in taxi boat in 10 minuti.
Il prezzo è iniziale e valido per la fase di vendita anticipata, con possibilità di personalizzare l’interni.
Per ulteriori informazioni, non esitate a contattarci!
Gentili clienti, in conformità con la Legge sulla mediazione immobiliare, le visite dell’immobile sono possibili solo previa firma del Contratto di Mediazione. In caso di acquisto, l’acquirente è tenuto a pagare la provvigione dell’agenzia.
ID CODE: 2854
Sendi Vinski
Engedélyezett ügynök
Mobil: 0038598443289
Telefon: 0038551222673
E-mail: prodaja@ardor-realestate.com
www.ardor-realestate.com
Die Wohnung besteht aus einem geräumigen Wohnzimmer mit Küche und Essbereich, einer Kücheninsel, zwei Badezimmern (eins davon en-suite im Hauptschlafzimmer) und zwei Schlafzimmern. Jede Wohnung verfügt über zwei private Parkplätze.
PVC-Anthrazit-Fenster, Mückennetze und elektrische Rollläden sorgen für modernes Design und Komfort. Die Immobilie befindet sich in einer ruhigen Umgebung zwischen Olivenhainen, 5 Minuten vom Meer und 5 Autominuten von der Altstadt von Rab entfernt, mit der Möglichkeit, in 20 Minuten zu Fuß oder in 10 Minuten mit dem Taxi-Boot dorthin zu gelangen.
Der Preis ist der Anfangspreis und gilt für die frühe Verkaufsphase mit der Möglichkeit, die Innenausstattung individuell anzupassen.
Für weitere Informationen kontaktieren Sie uns gerne!
Sehr geehrte Kunden, gemäß dem Gesetz über die Immobilienvermittlung sind Besichtigungen ausschließlich nach Unterzeichnung eines Vermittlungsvertrages möglich. Im Falle eines Kaufs ist der Käufer verpflichtet, die Maklerprovision zu zahlen.
ID CODE: 2854
Sendi Vinski
Engedélyezett ügynök
Mobil: 0038598443289
Telefon: 0038551222673
E-mail: prodaja@ardor-realestate.com
www.ardor-realestate.com
Stan se sestavlja iz prostorne dnevne sobe s kuhinjo in jedilnico, kuhinjskega otoka, dveh kopalnic (ena je v master spalnici) in dveh spalnic. Vsakemu stanovanju pripadata dve zasebni parkirni mesti.
PVC antracit okna, komarniki in električni rolete zagotavljajo sodoben videz in udobje. Nepremičnina se nahaja v mirnem območju oljčnih nasadov, 5 minut od morja in 5 minut z avtom od starega mestnega jedra Raba, s možnostjo 20-minutnega hoje ali 10-minutne vožnje s taxi čolnom.
Cena je začetna in velja za zgodnjo fazo prodaje z možnostjo prilagoditve notranje ureditve.
Za vse dodatne informacije nas lahko kontaktirate z zaupanjem!
Spoštovani kupci, v skladu z Zakonom o posredovanju v prometu z nepremičninami je ogled nepremičnine mogoč izključno ob podpisu posredniške pogodbe. Kupec je ob realizaciji nakupa dolžan plačati agencijsko provizijo.
ID CODE: 2854
Sendi Vinski
Engedélyezett ügynök
Mobil: 0038598443289
Telefon: 0038551222673
E-mail: prodaja@ardor-realestate.com
www.ardor-realestate.com
Cím
- Város Rab
- Megye Primorje-Gorski Kotar megye
Részletek
-
Ár 515,000€
-
Felület 134.00 m²
-
Hálószobák száma 2
-
Szobák száma 3
-
Fürdőszobák száma 2
-
Tranzakció Eladó
-
Írja be Lakás/lakás
-
Emelet 2
-
Összes emelet 2
-
Parkolóhelyek 2
-
Apartman típus egy lakóépületben,
-
Azonosító kód HZ2854
- Az energetikai tanúsítvány készítése folyamatban van,
- Energia osztály
- Víz, Villany, Városi vízellátás, Aszfaltút, Légkondicionálás, Városi csatorna,
- Közművek
- kaputelefon,
- Technika
- 2,
- Parkolóhelyek
- Park, Sportski centar, Pošta, Banka, Trgovina,
- A tartalomhoz való közelség
Hasonló tulajdonságok
Krk, lijepi apartman sa terasom
- 301,000€
- ID: 2996
- Szoba: 2
- Ágy: 1
- Lakás/lakás
Otok Rab, Barbat, dvoetažni stan sa prekrasnim pogledom
- 600,000€
- ID: 2989
- Szoba: 4
- Ágy: 4
- Lakás/lakás
Viškovo, trosoban stan u novogradnji
- 290,500€
- ID: 2984
- Szoba: 4
- Ágy: 3
- Lakás/lakás
Sušačka Draga, novogradnja 3S+DB s terasom i okućnicom
- 244,000€
- ID: 2978
- Szoba: 4
- Ágy: 3
- Lakás/lakás











